(受付時間 9:00~18:00)
1歩足を踏み入れると思わずワクワクしてしまう。
趣味を楽しむ工夫と、健康住宅suminoie(スミノイエ)で心身共に健康になれるモデルハウスです。
「忙しい日常を過ごす皆さんに、お家の中ではワクワクする趣味でリラックスして過ごして欲しい。」
そんな思いから生まれた、ライフスタイル提案型モデルハウスが誕生です!
是非、ご覧ください。
ACCESS MAP
〒939-8002
富山県富山市公文名1-3
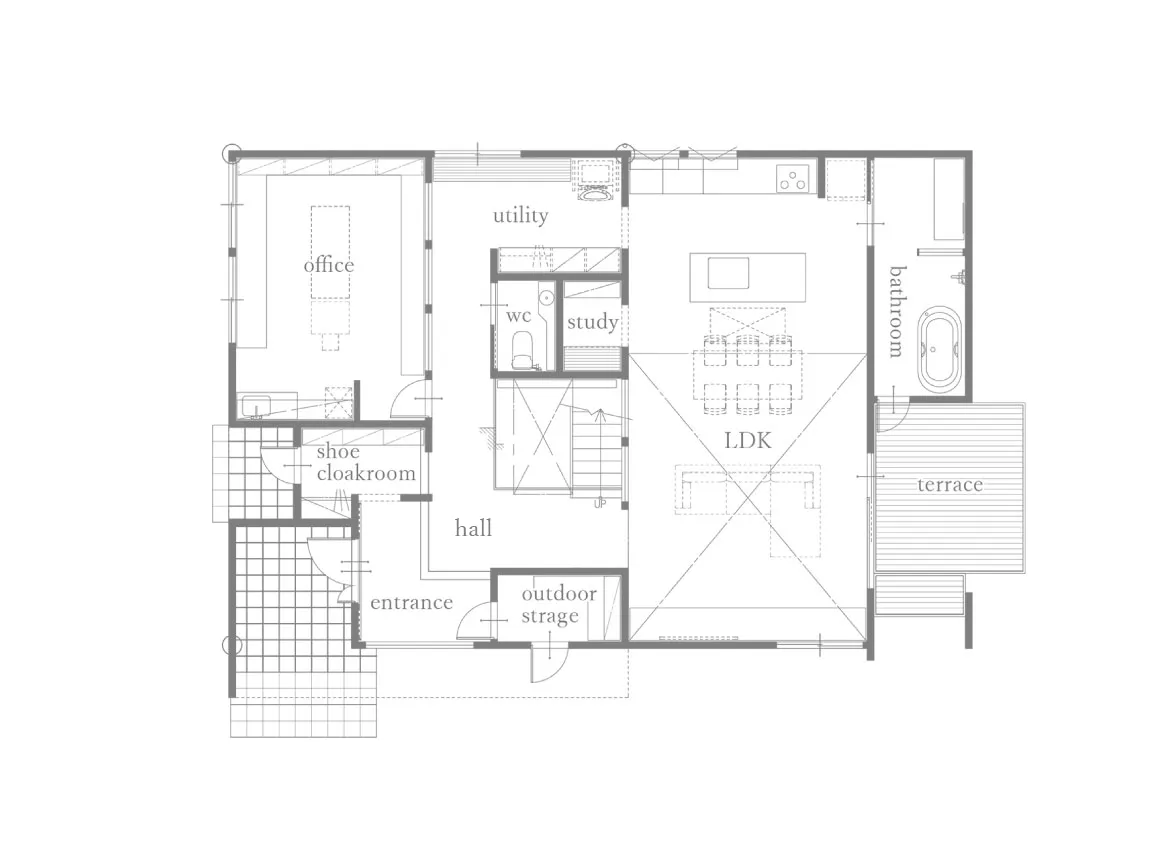
【LDK】開放的な吹き抜けリビング
リビングは開放的で風通しがよく、明るい空間です。
こだわりのアイランドキッチンでは家族とのコミュニケーションも弾みます。
【書斎スペース】穏やかな雰囲気を演出
リビング隣には小さいスペースながらも仕事が捗る書斎です。
淡い照明で集中して作業ができます。
【バレルサウナ】家族でととのう空間
日常にととのうスペースを。
ガーデニングを楽しみながら、毎日のサウナタイムが日常に彩りをもたらします。
【シアタールーム】大人だけの寛ぎスペース
大人でも好きなことに没頭できる「趣味部屋」
ちょっとした非日常空間で、日々の疲れを癒すスペースです。
CATALOGカタログ
私たちの家づくりが全てわかる資料
独自のライフスタイルに合わせてデザインされた
オーダーメイド住宅から、
快適な暮らしを
追求する平屋規格住宅まで、
幅広いラインナップをご用意しています。

